Home
 Appartamento 3 locali, Lüina 87
AFFITTO

Appartamento 3 locali, Lüina 87


Condividi:

Contatto
Ferretti Aldo
+41 79 505 05 42
aldo.ferretti@ticino.com

Dove
Lüina 87

Locali
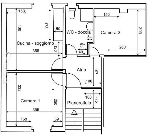
Piccolo appartamento mansardato di 3 locali, situato al 2° piano, così composto: cucina/soggiorno, 2 camere, atrio, WC con cabina doccia.
Lavanderia in comune, cantina e posto auto.

Riscaldamento
Centrale a gasolio

Affitto
CHF 630.-/mese + spese accessorie

Disponibile da fine aprile 2026


Contatti
Albo
Sportello Online
Mappa
Immobili
Meteo
Cookie bar

Facciamo uso di cookies e di altre tecnologie di tracciamento per migliorare la vostra esperienza e per analizzare il traffico del nostro sito web.

Per maggiori informazioni vi invitiamo a consultare la nostra Politica sulla privacy.

Cliccando su "Accetta" acconsentite alla raccolta dei dati.

Potete modificare in ogni momento le impostazioni relative ai cookies e rifiutarli, tranne quelli funzionali strettamente necessari.


Funzionali
Preferenze
Statistiche
Marketing